Wir weisen darauf hin, dass eingehende Ausschreibungen in der Regel nicht geprüft werden können und stets ohne Gewähr veröffentlicht bzw. weitergeleitet werden.
Wir bitten Sie folglich, vor Abgabe von Bewerbungen mit den ausschreibenden Institutionen oder Vereinen Kontakt aufzunehmen.
Neue Ausschreibungen werden in chronologischer Reihenfolge nach dem Bewerbungsschluss eingefügt.
Bewerbungsschluss 10. April 2026
Ausloberin
Gemeinde Hohberg, 77749 Hohberg, Freiburger Str. 32, 07808/ 88-0,
rathaus@hohberg.de,
Alle Infos unter www.hohberg.de
Anlass und Ziel
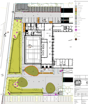
Die Gemeinde Hohberg realisiert derzeit den Neubau einer Einfeldsporthalle als Erweiterung der bestehenden Hohberghalle im Ortsteil Niederschopfheim. Mit diesem bedeutenden Infrastrukturprojekt wird ein zentraler Ort für Sport, Begegnung und gemeinschaftliches Leben geschaffen, der den Bedürfnissen von Vereinen, Schulen und Bürgerschaft gleichermaßen dient. Das Vorhaben wird unter anderem gefördert im Rahmen des Bundesprogramms „Sanierung kommunaler Einrichtungen in den Bereichen Sport, Jugend und Kultur“. Die Rohbauarbeiten sind abgeschlossen; aktuell erfolgt der Innenausbau. Mit der Herstellung der Freianlagen wird im April 2026 begonnen, die Fertigstellung der Gesamtmaßnahme ist für September 2026 vorgesehen.
Bewerbungen bis 23. März 2026
Erinnerung – Trauer – Information – Gedenken
Im April 1945 strandete ein KZ-Transportzug im Bahnhof Brockel. 41 tote Häftlinge wurden hier verscharrt. Dieser Teil unserer Geschichte darf nicht in Vergessenheit geraten. Die Samtgemeinde Bothel sucht nach der besten Lösung, Erinnerung, Trauer, Information und Gedenken an dieses Ereignis vor Ort aufrecht zu erhalten. Wie kann so ein Platz aussehen? Haben Sie einen Vorschlag?
Alle Infos zum Download oder unter www.bothel.de
Hier finden sich immer aktuelle Ausschreibungen der Bundesanstalt für Immobilienaufgaben: kunst-am-bau.bundesimmobilien.de
Kunst am Bau hat beim Bund eine lange Tradition. Als künstlerische Aufgabe mit unmittelbar öffentlichem Bezug ist sie ein wichtiger Bestandteil der öffentlichen Bauherrenaufgabe. Kunst am Bau setzt sich mit Ort und Raum, Inhalt und Funktion der Bauaufgabe auseinander. Sie kann einen Bau unterstreichen oder auf ihn reagieren, Akzeptanz und Identifikation fördern, Öffentlichkeit herstellen und Standorten ein zusätzliches Profil verleihen.
Die Beteiligung bildender Künstlerinnen und Künstler bei Baumaßnahmen des Bundes unterliegt entsprechenden Verfahrensregeln, die in der Richtlinie zur Durchführung von Bauaufgaben des Bundes (RBBau), Anhang K 7 beschrieben sind. Ergänzend und konkretisierend wurde hierzu vom Bundesministerium für Verkehr, Bau und Stadtentwicklung (BMVBS) 2005 der Leitfaden Kunst am Bau entwickelt. Er dient als Orientierungshilfe für alle Baumaßnahmen im Anwendungsbereich der RBBau und RZBau (einschließlich vom Bund geförderter Hochschulbauten) sowie für Baumaßnahmen des Bundes im Rahmen öffentlich-privater Partnerschaftsmodelle (PPP). Der Leitfaden hat sich in der Praxis vielfach bewährt, gleichwohl erforderten rechtliche, strukturelle und organisatorische Änderungen im Bundesbauwesen seine Überarbeitung und Fortschreibung.
Der nun aktualisierte Leitfaden Kunst am Bau verdeutlicht den baukulturellen Anspruch des Bundes als Bauherr und verbindet ihn mit der Notwendigkeit qualifizierter und praktikabler Verfahren. Dies gilt sowohl für die Realisierung neuer Kunst am Bau als auch für den nachhaltigen Umgang mit bestehender Kunst am Bau, die angemessen zu unterhalten und zu dokumentieren ist.
Download und weitere Infos unter: